PROPERTY SUMMARY
PROPERTY DESCRIPTION
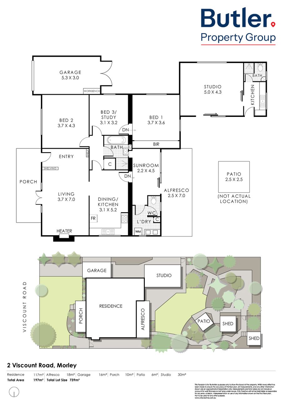
Conveniently located on the Dianella border, this circa 1960 home is sold in AS IS condition and presents a prime opportunity to secure an established home on a large 739sqm R25 development site with outstanding subdivision or renovation potential.
The home features 3 bedrooms, 1 bathroom, spacious living room, central kitchen/meals, sunroom, single garage, shed to rear, plus additional granny flat with spacious bedroom/living, bathroom and kitchenette, and more.
Positioned just a short drive from Dianella Plaza, Noranda Shopping Centre, Morley Galleria, Coventry Markets, parks, schools, shops, public transport and more, convenience and lifestyle are right at your doorstep.
Set on a 739sqm R25 zoned block, with a 17.5m frontage and 42.24m depth, the possibilities here are endless – now is the time to either subdivide and prosper or renovate and extend (subject to approval from the WA Planning Commission, local council, and relevant authorities).
Whether you’re an investor, owner occupier, or developer this exceptional opportunity won’t last long.
Don’t Delay – this prime development site and home is purchased in ‘AS IS’ condition and is on the market to be SOLD!
The following features are included:
Double brick and tile construction
Front verandah
Separate entry
3 Bedrooms
Additional granny flat with large bedroom/living, bathroom with shower, toilet and basin, plus kitchenette
Living room with weather wall and doors opening to front
Kitchen/meals with ample cupboard and bench space, overhead cupboards, rangehood, and fridge recess
Freestanding electric stove and oven with 4 Burner electric cook top
Security doors to front and rear
Sunroom
Solar hot water system
Bore reticulation
Patio to rear
Single garage
Shed to rear
Land area – 739sqm
Frontage – 17.5m
Zoned R25
Water rates – $1,107p.a
Council rates – $2,250p.a (approx.)
Built 1960
To view contact: Karl Butler 0419 046 395
Please note, although the best efforts have been taken to validate all the information provided in relation to this property and more particularly, meterage’s, areas, zoning and development potential, the buyer must ensure they do their own due diligence prior to submitting an offer





