PROPERTY SUMMARY
PROPERTY DESCRIPTION
Conveniently located close to multiple parks and the Swan River, this spacious circa 1960 home is sold in AS IS condition and presents a rare opportunity to secure an established home on a large 906sqm R20 block with development potential.
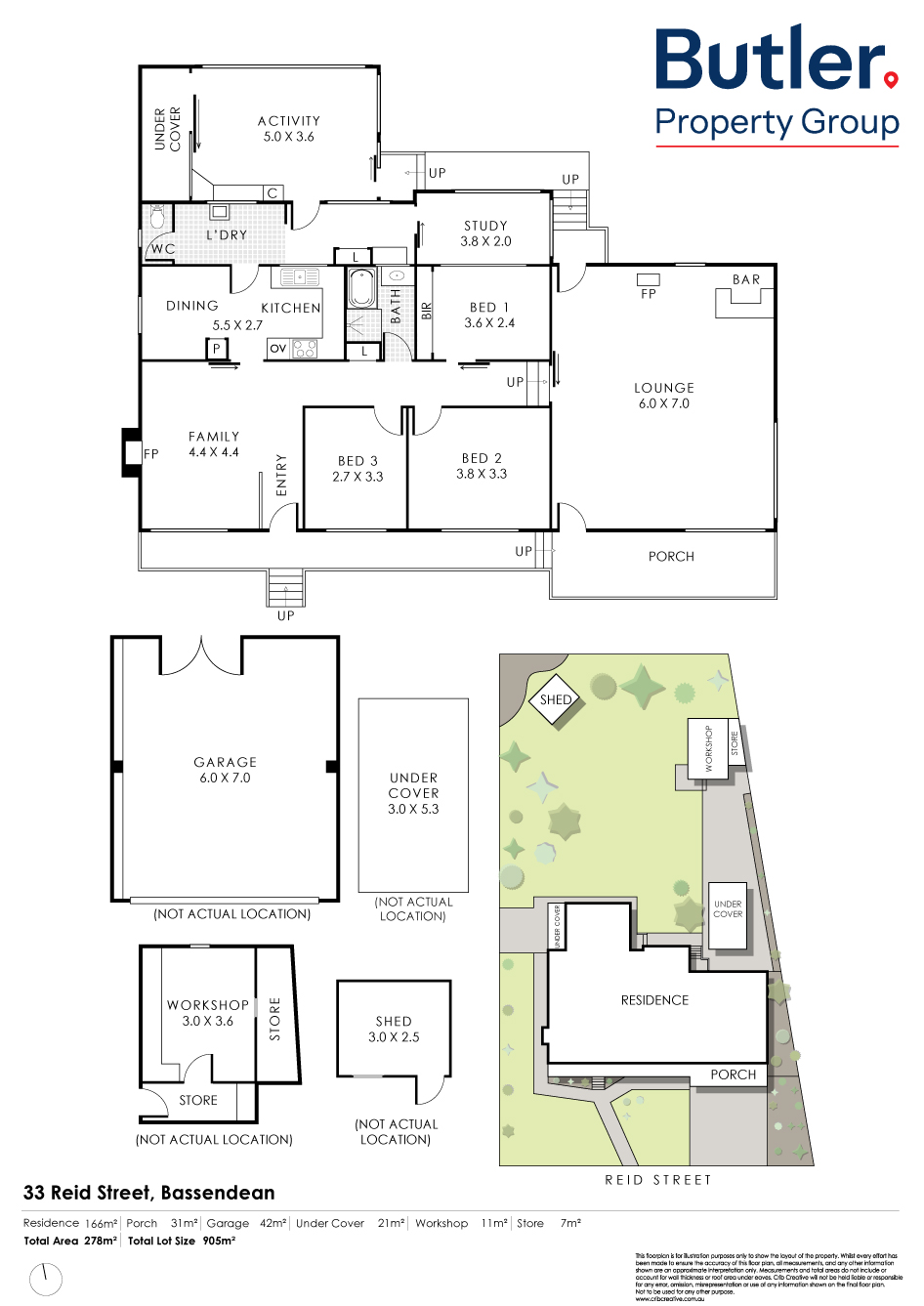
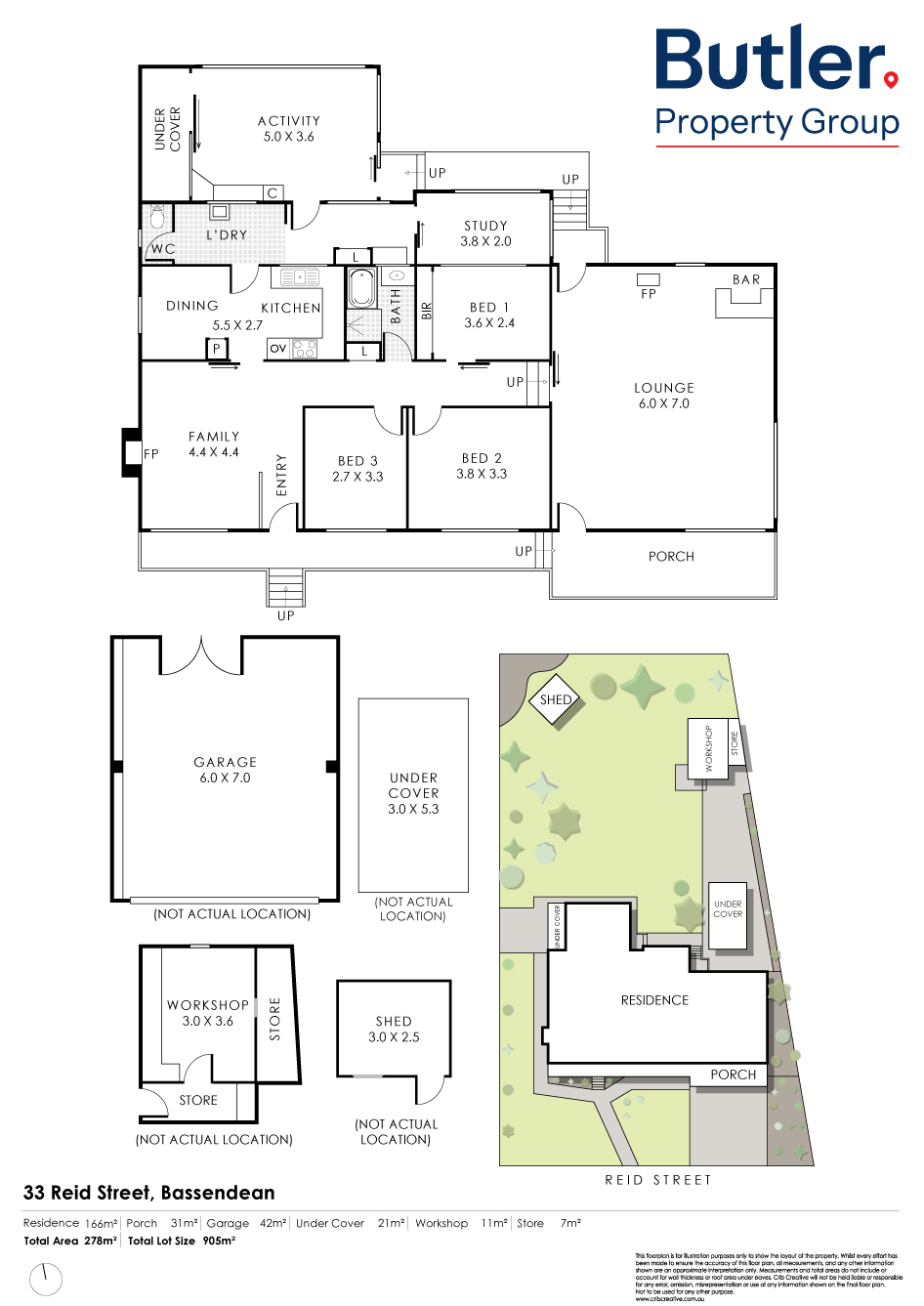
The home features 3 bedrooms, 1 bathroom, lounge room, central kitchen/meals, games/activity alarm security, cameras, double garage, workshop, shed, bore reticulation, and more.
Positioned just a short drive from shops, cafes, restaurants, schools, public transport and more, convenience and lifestyle are right at your doorstep.
Set on a generous 905sqm R20 zoned block, with a 26.15m frontage the possibilities here are numerous – (subject to approval from the WA Planning Commission, local council, and relevant authorities).
Whether you’re an owner occupier, investor, or developer this exceptional opportunity won’t last long.
Don’t Delay – this prime property is purchased in ‘AS IS’ condition and is on the market to be SOLD!
The following features are included:
Double brick and tin construction
Front verandah
Entry with security door
3 Bedrooms (2 with robes)
Bathroom with separate bath and shower
Living room with aspect to front
Central kitchen/meals with ample cupboard and bench space, pantry, tiled splash back, overhead cupboards, microwave, rangehood, and automatic roller shutter
4 Burner electric cook top
Electric wall oven
Large games room with built in bar and access to front & rear
Alarm security system
Cameras
Ducted reverse cycle air conditioning (4 Zones)
Electric storage hot water system
Automatic bore reticulation
Double garage
Workshop
Shed
Land area – 905sqm
Frontage – 26.15m
Zoned R20
Water rates – $1,222p.a
Council rates – $2,350p.a (approx.)
Built 1960
To view contact: Karl Butler 0419 046 395
Please note, although the best efforts have been taken to validate all the information provided in relation to this property and more particularly, meterage’s, areas, zoning and development potential, the buyer must ensure they do their own due diligence prior to submitting an offer




