PROPERTY SUMMARY
PROPERTY DESCRIPTION
Conveniently located opposite RA Cook Reserve, this spacious circa 1965 home is sold in AS IS condition and presents a rare opportunity to secure an established home on a huge 1232sqm R40 development site with outstanding subdivision potential.
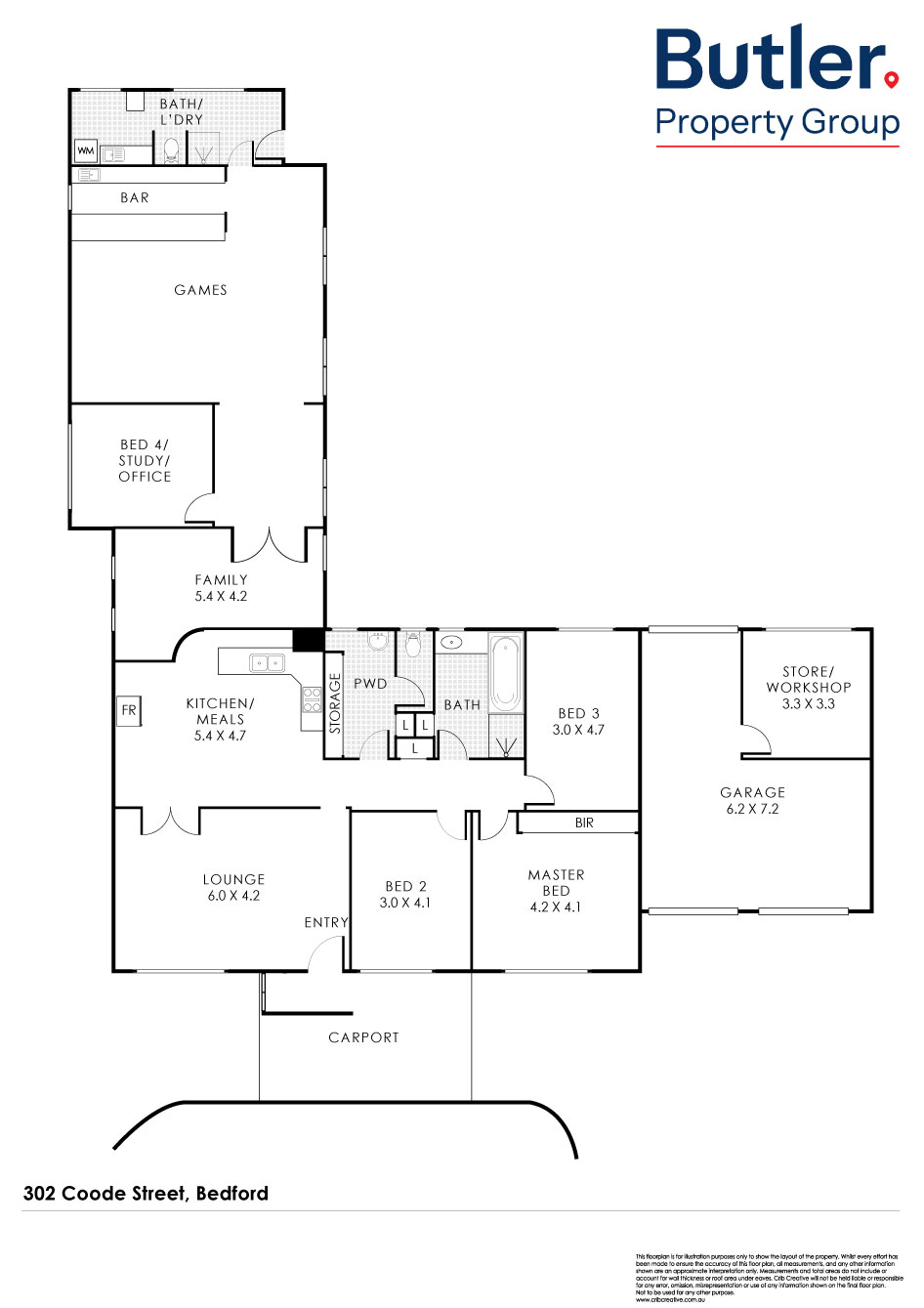
The home features 4 bedrooms, 2 bathrooms, lounge room, central kitchen/meals/family room, games room opening to rear, double garage, workshop, carport, bore reticulation, and more.
Positioned just a short drive from Dianella Plaza, Morley Galleria, Coventry Markets, parks, schools, shops, public transport and more, convenience and lifestyle are right at your doorstep.
Set on a generous 1232sqm R40 zoned block, with a 25.91m frontage and 47.5m depth, the possibilities here are endless – now is the time to subdivide and prosper (subject to approval from the WA Planning Commission, local council, and relevant authorities).
Whether you’re an investor, builder, or developer this exceptional opportunity won’t last long.
Don’t Delay – this prime development site is purchased in ‘AS IS’ condition and is on the market to be SOLD!
The following features are included:
Double brick and tile construction
Front verandah
Entry with security door
4 Bedrooms (3 with ceiling fans)
Master bedroom with ceiling fan, reverse cycle air conditioning and robe
2 Bathrooms, main with separate bath and shower (2nd bathroom to laundry)
Powder room
Lounge room with reverse cycle air conditioning and aspect to front
Central kitchen/meals/family with ample cupboard and bench space, pantry, overhead cupboards, double sinks, rangehood, breakfast bar and reverse cycle air conditioning
4 Burner gas cook top
Electric under bench oven
Huge games room to rear with built in bar and access to rear
Alarm security system
Ducted evaporative air conditioning
Gas storage hot water system
Automatic bore reticulation
Double lock up garage with drive through access
Single carport to front
Workshop/storage
Land area – 1232sqm
Frontage – 25.91m
Zoned R40
Dual crossovers
Pool not in working order
Water rates – $1,355p.a
Council rates – $2,950p.a (approx.)
Built 1965
To view contact: Karl Butler 0419 046 395
Please note, although the best efforts have been taken to validate all the information provided in relation to this property and more particularly, meterage’s, areas, zoning and development potential, the buyer must ensure they do their own due diligence prior to submitting an offer.


