PROPERTY SUMMARY
PROPERTY DESCRIPTION
All offers are to be submitted by 6:00pm (WST) Monday the 8th of December 2025 and the Seller reserves the right to accept any offer prior to this date without notice.
Superbly positioned on a quiet street, this original circa 1974 residence presents an exceptional opportunity to secure an established home in a highly sought-after location.
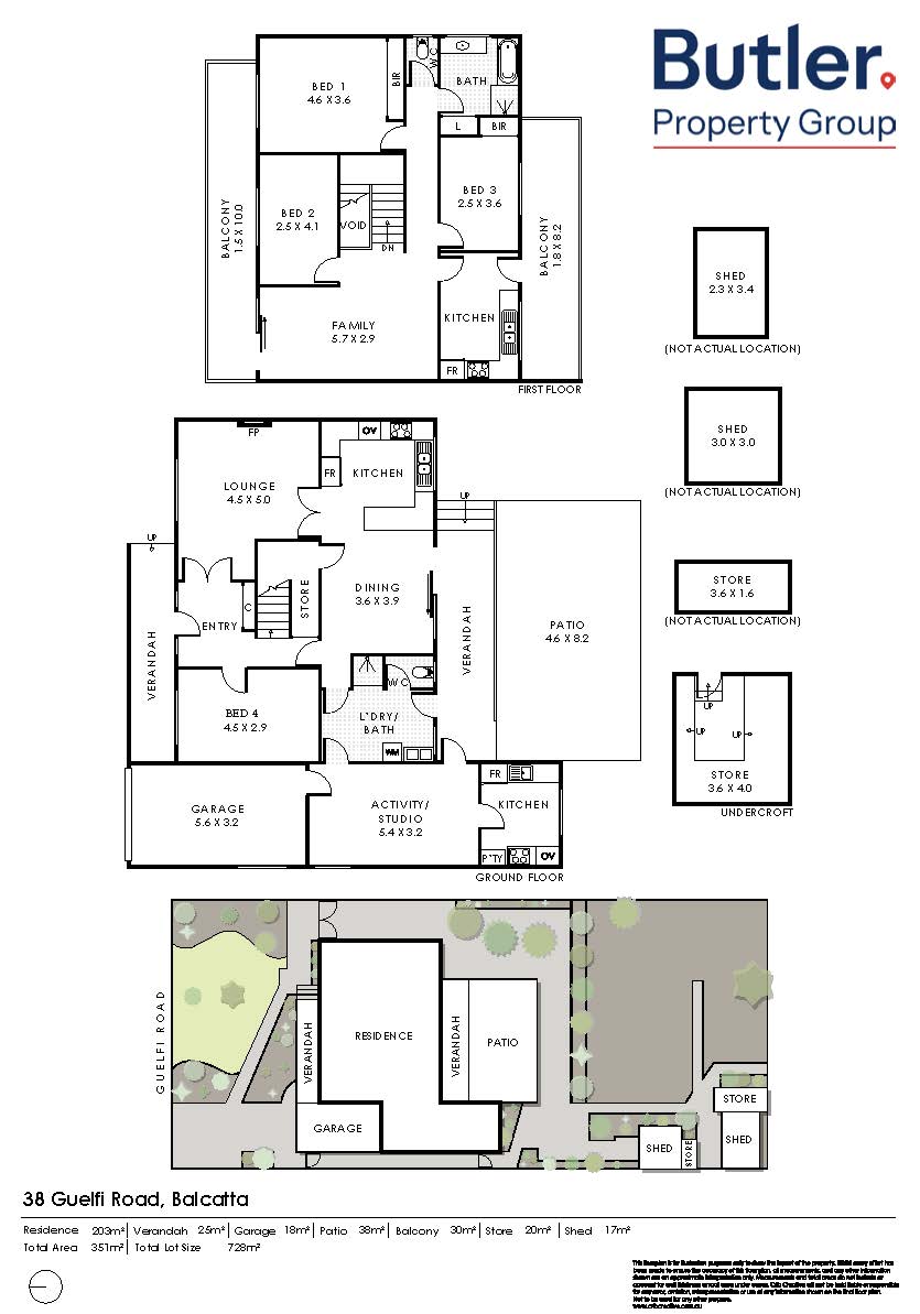
Offering space and versatility, the home includes four bedrooms, two bathrooms (including a combined laundry/bathroom), a generous living room, spacious kitchen/meals area, two additional kitchenettes, upstairs living, and front and rear balconies. Outside, you’ll find a large pitched patio, established gardens, shed, bore reticulation, and more – providing plenty of room for family living and future enhancements.
Convenience is a standout, with multiple shopping precincts, schools, parks, and public transport options only a short drive away, plus easy access to both the city and coast. This is a location where lifestyle truly meets practicality.
Set on a 728sqm R20-zoned block, featuring an 18.1m frontage and 40.23m depth, the property offers strong potential to add value through renovation or extension. Whether you’re an astute investor or a homebuyer seeking a project with outstanding upside, opportunities like this are highly sought after.
Don’t Delay – this established home is purchased in ‘AS IS’ condition and is on the market to be SOLD!
The following features are included:
Double brick and tile construction
Separate entry with security door
4 Bedrooms all with roller shutters (2 with built in robes)
Master bed with built in robe, reverse cycle air conditioning, automatic shutters, and access to balcony
2 Bathrooms, main with separate bath and shower
Spacious living room with reverse cycle air conditioning
Upstairs living room with automatic roller shutter access to front balcony.
Rear balcony with city views
Large kitchen with ample cupboard and bench space, double sinks, overhead cupboards, and roller shutter
Electric wall oven and grill
4 Burner electric cook top
Meals adjacent to kitchen with automatic roller shutter and access to rear
2 Additional kitchenettes
Quality timber architraves throughout and timber boards (jarrah) beneath existing ground floor coverings
Laundry with shower and separate toilet (2nd Bathroom)
Roller shutters to most windows
Gas instantaneous hot water system
Large pitched patio
Established gardens with multiple fruit trees
Automatic bore reticulation
Single garage
Shed to rear
Land area – 728sqm
Frontage – 18.1m
Zoned R20
Water rates – $1,470p.a
Council rates – $1,950p.a (approx.)
Built 1974
Please note, although the best efforts have been taken to validate all the information provided in relation to this property and more particularly, meterage’s, areas, zoning and development potential, the buyer must ensure they do their own due diligence prior to submitting an offer.

