PROPERTY SUMMARY
PROPERTY DESCRIPTION
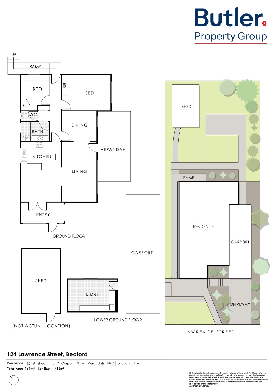
Look no further, here lies the chance to secure a highly sought-after green title block in one of Perth’s most tightly held suburbs. Set on 486sqm, this property offers versatility for buyers looking to renovate, rebuild or landbank in a premium lifestyle location.
The existing home features 2 bedrooms, 1 bathroom, and a double carport, providing a solid foundation for those eager to transform the property through renovation. Alternatively, follow the lead of many neighbouring homes and explore the incredible potential for future demolition and redevelopment (subject to council approvals).
Positioned for absolute convenience, you’ll enjoy access to the Perth CBD, public transport, local shopping precincts, and one of the area’s most respected schools Chisholm Catholic College, only a 200m walk away. Whether you’re an investor, developer, first home buyer or wanting land and location, this is an opportunity that rarely comes to market.
Important Note to Buyers:
The property is being sold as-is, including all fixtures and fittings, with no warranties provided regarding working order or structural condition. The seller is unable to undertake any repairs or rectifications.
Opportunities like this don’t wait. Secure your foothold in Bedford today and bring your vision to life!





















